Skip To Content

4173 Driver Lane

Port Charlotte, FL 33981
  • $178,000
  • STATUS: Closed
  • ON SITE: 452 Days
  • MLS #: TB8342020
Sold - 04/18/2025
$178,000
SOLD - 04/18/2025
  • 3
    BEDS
  • 0.23
    ACRES
  • 2
    BATHS
  • 0
    1/2 BATHS
  • 1,440
    SQFT
  • $0
    $/SQFT
Neighborhood:
Type:
Single-Family Home
Built:
1975
County:

School Ratings & Info

Description

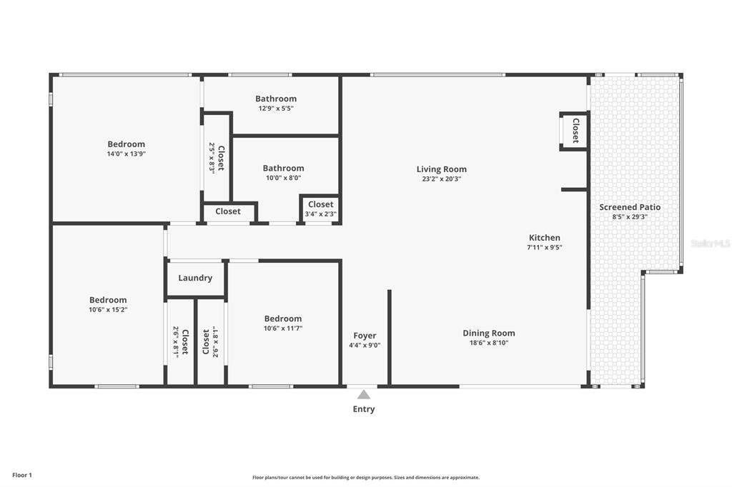
Welcome to your new home with a modern kitchen that will inspire your inner chef, featuring updated cabinets, sleek quartz countertops, and energy-efficient stainless steel appliances. The open floorplan seamlessly connects the kitchen to the living area, accentuated by large sliding doors that flood the space with natural light, creating a welcoming ambiance ideal for both relaxation and entertaining. HVAC was replaced in 2023. Step outside onto the expansive screened patio, where you can enjoy the tranquil surroundings and gentle breezes while savoring your morning coffee or hosting gatherings with friends and family. Conveniently located near the Myakka River and Myakka State Forest, this home offers unparalleled access to outdoor adventures and natural beauty. Whether you're kayaking along the river, hiking through the forest trails, or simply enjoying a picnic amidst the lush surroundings, this location provides endless opportunities for outdoor recreation and exploration. With its modern amenities, prime location, and captivating surroundings, this home offers the perfect blend of comfort, style, and nature's tranquility, making it an idyllic retreat for those seeking the ultimate Florida lifestyle.

Monthly Payment Calculator




© 2026 My Florida Regional MLS DBA Stellar MLS. All rights reserved. All listings displayed pursuant to IDX. All listing information is deemed reliable but not guaranteed and should be independently verified through personal inspection by appropriate professionals. Listings displayed on this website may be subject to prior sale or removal from sale; availability of any listing should always be independently verified. Listing information is provided for consumers personal, non-commercial use, solely to identify potential properties for potential purchase; all other use is strictly prohibited and may violate relevant federal and state law. Data last updated 2026-04-19T23:43:11.6.
www.tuscawillarealty.com/homes/159659306
Print Image

4173 Driver Lane Port Charlotte, FL 33981

  • Price: $179,900
  • Status: Closed
  • On Site: 452 Days
  • Updated: 198 min ago
  • MLS #: TB8342020
3
Beds
2
Baths
0
½ Baths
0.23
Acres
1,440
SQFT
$0
$/SQFT
1975
Built
Neighborhood:
Port Charlotte Sec 060
County:
Charlotte
Area:
Port Charlotte
Property Description
Welcome to your new home with a modern kitchen that will inspire your inner chef, featuring updated cabinets, sleek quartz countertops, and energy-efficient stainless steel appliances. The open floorplan seamlessly connects the kitchen to the living area, accentuated by large sliding doors that flood the space with natural light, creating a welcoming ambiance ideal for both relaxation and entertaining. HVAC was replaced in 2023. Step outside onto the expansive screened patio, where you can enjoy the tranquil surroundings and gentle breezes while savoring your morning coffee or hosting gatherings with friends and family. Conveniently located near the Myakka River and Myakka State Forest, this home offers unparalleled access to outdoor adventures and natural beauty. Whether you're kayaking along the river, hiking through the forest trails, or simply enjoying a picnic amidst the lush surroundings, this location provides endless opportunities for outdoor recreation and exploration. With its modern amenities, prime location, and captivating surroundings, this home offers the perfect blend of comfort, style, and nature's tranquility, making it an idyllic retreat for those seeking the ultimate Florida lifestyle.
Exterior Features

Attached Garage Yn Yes Carport Yn No Construction Materials Wood Frame Covered Spaces 1 Direction Faces North Exterior Features Other Foundation Details Slab Open Parking YN Yes Parking Features Driveway Pool Private Yn No Road Surface Type Paved Roof Shingle Water Access Yn No Water Extras Yn No Water View Yn No Waterfront Feet Total 0 Waterfront Yn No

Interior Features

Appliances DishwasherMicrowaveRangeRefrigerator Building Area Total 2190 Cooling Central Air Cooling YN Yes Fireplace Yn No Flooring LaminateTile Heating CentralElectric Heating YN Yes Interior Features Ceiling Fan(s) Laundry Features InsideLaundry Closet Levels One Rooms Living Room Kitchen Primary Bedroom (Built-in Closet) Sewer Septic Tank Stories Total 1 Water Source Public

Property Features

Association Yn No Cdd Yn No Down Payment Resource Yes Flood Zone Code AE Garage Yn Yes Homestead Yn No Lease Considered YN Yes Lease Restrictions YN No Listing Terms CashConventional Minimum Lease 8-12 Months New Construction Yn No Ownership Fee Simple Property Sub Type Single Family Residence Realtor Info As-Is Senior Community Yn No Special Listing Conditions None Sw Subdiv Community Name Port Charlotte Tax Annual Amount 3367.63 Total Annual Fees 0 Total Monthly Fees 0 Utilities Other Zoning RSF3.5


Listing information © 2026 My Florida Regional MLS DBA Stellar MLS..
Listing provided courtesy of EXP REALTY LLC: 888-883-8509.



© 2026 My Florida Regional MLS DBA Stellar MLS. All rights reserved. All listings displayed pursuant to IDX. All listing information is deemed reliable but not guaranteed and should be independently verified through personal inspection by appropriate professionals. Listings displayed on this website may be subject to prior sale or removal from sale; availability of any listing should always be independently verified. Listing information is provided for consumers personal, non-commercial use, solely to identify potential properties for potential purchase; all other use is strictly prohibited and may violate relevant federal and state law. Data last updated 2026-04-19T23:43:11.6.
 
https://bt-photos.global.ssl.fastly.net/mfr/orig_boomver_1_TB8342020-2.jpg https://bt-photos.global.ssl.fastly.net/mfr/orig_boomver_1_TB8342020-2.jpg https://bt-photos.global.ssl.fastly.net/mfr/orig_boomver_1_TB8342020-2.jpg
Logo
Tuscawilla Realty, Inc
2290 W. Airport Blvd.
Sanford FL, 32771